Interior
Project 3
Previous
Next
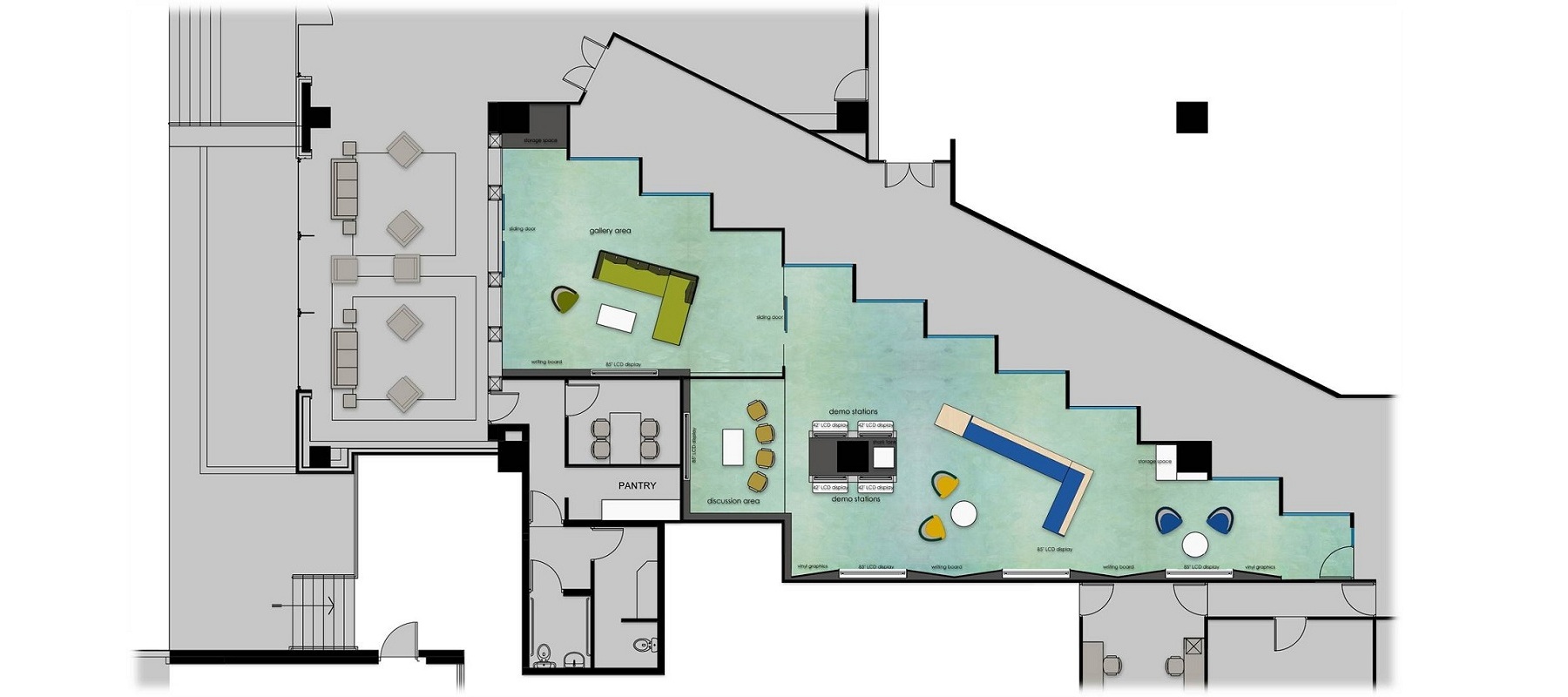
Customer Innovation Center
Location:
Mahadevpura, Bangalore
Area:
2000 sqft
Mode:
Design Build
Status:
Completed
Value:
30 Million INR